Suscribite GRATIS y recibí cada mes la NUEVA EDICIÓN
M² DE CONSTRUCCIÓN | Consultá el PRECIO ACTUALIZADO
Descargá la PLANILLA INTERACTIVA DE CÁLCULO
Inicio
Secciones
Todas las notas
Novedades
Obras
Cursos y Capacitaciones
Análisis Económico
Higiene y Seguridad
Intervención
Tesis
Patrimonio
Guía de Proveedores
Nosotros
Números anteriores
Sugerir Proyecto
Subastas – Edictos
Biblioteca Digital
CALCULÁ
Simulador de Honorarios
Aislaciones
Contrapisos y Carpetas
Cubiertas y Cielorrasos
Escaleras
Estructuras de H° A°
Fabricación – Bloques de H°
Maderas
Mampostería
Pinturas y Empapelados
Pisos, Antepechos, Solias, Umbrales, Zócalos y Cordón de H° A°
Revoques y Revestimientos
✕
Inicio
Secciones
Todas las notas
Novedades
Obras
Cursos y Capacitaciones
Análisis Económico
Higiene y Seguridad
Intervención
Tesis
Patrimonio
Guía de Proveedores
Nosotros
Números anteriores
Sugerir Proyecto
Subastas – Edictos
Biblioteca Digital
CALCULÁ
Simulador de Honorarios
Aislaciones
Contrapisos y Carpetas
Cubiertas y Cielorrasos
Escaleras
Estructuras de H° A°
Fabricación – Bloques de H°
Maderas
Mampostería
Pinturas y Empapelados
Pisos, Antepechos, Solias, Umbrales, Zócalos y Cordón de H° A°
Revoques y Revestimientos
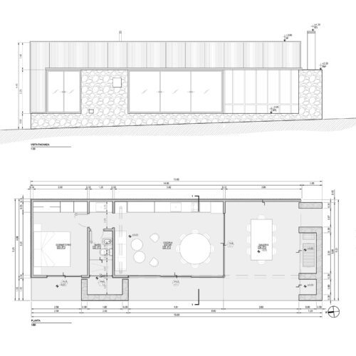
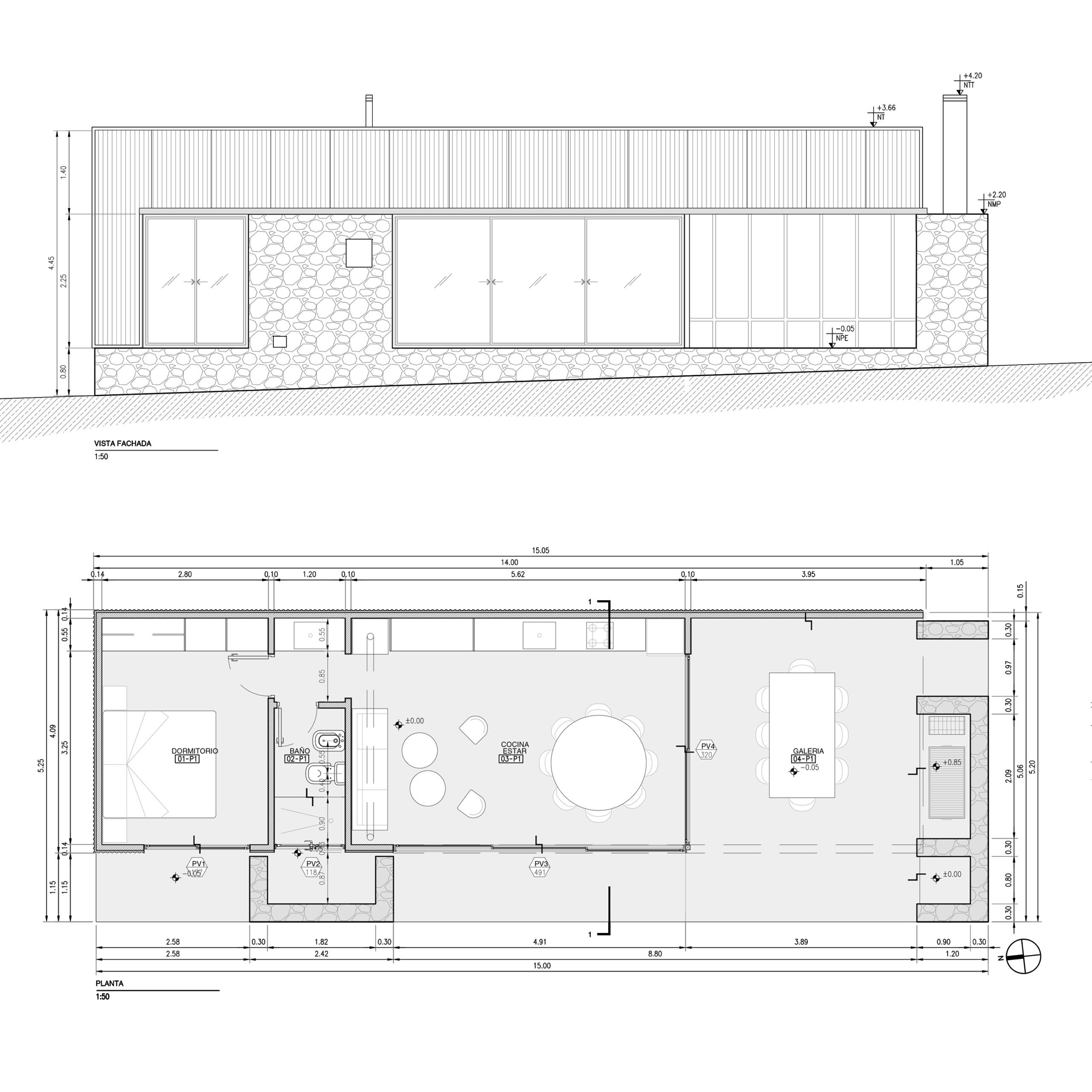
Planta y Vista Fachada
Inicio
Planta y Vista Fachada